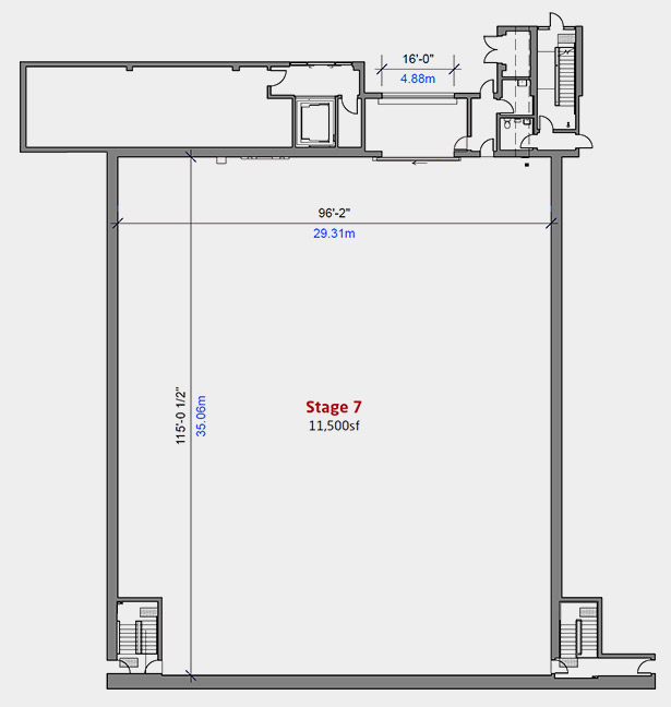
Lake City Studios

11,500 sq. ft. soundproof and climate controlled studio.

DOWNLOADS

Stage 7 - SPECS

NOTES

  • 11,500sf (1068.38ms)
  • 30′-2″ floor to roof truss
  • Loading Bay Doors 20’h x 16’w
  • Heated and air conditioned with a 40 ton capacity unit.
  • HVAC VRF (Variable Refrigerant Flow) system uses NO fossil fuels.
  • Soundstage walls are isolated and fully blanketed with sound absorbing materials.
  • Concrete roof has sound absorbing material sprayed onto the ceiling.
  • 5/8″ wood OBS sheets bolted to laser flat concrete floor to provide set anchoring and additional soundproofing.
  • 3 x 400 amp camlock disconnects, 1 on the studio floor, 2 in the adjoining Dimmer Room. Additional power is available.
  • 200 Amp electrical plug-in hook-ups for Base Camp trailers throughout the site.
  • LED lighting in soundstages and throughout the facility.
  • Slab Design Load = 300 lbs/sf

 BRIDGE STUDIOS ARE PROUD PARTNERS OF